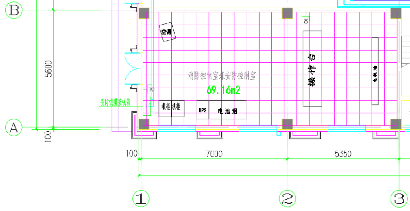
机房工程
监控机房设置在活动中心,内设操作台、电视墙、广播机柜、空调等设备,铺设防尘防静电地板,所有的防雷设施必须为有3C认证且当地气象部门认可的产品。
机房地面铺设全钢抗静电活动地板,活动地板应符合GB6650—86《计算机机房活动地板技术条件》的要求,防静电地板:规格600*600*35,性能达到A级标准。地面进行防水防尘处理,通过铜箔带与等电位箱连接,有效防雷接地。UPS不间断电源:含电池,电池柜,配线。额定容量为20KVA,采用双转换纯在线式逆变供电,市电与电池供电切换时间为0,输入输出方式为单进单出。直流电压192V蓄电池配置12V65AH一组,采用原装正品品牌。
监控系统和可视对讲系统分别配置600*800*2000标准机柜各1台。机房内落地安装2.5P柜式空调,保证机房内恒温恒湿,从而确保设备运行稳定。配置6联操作台,选用3000*800*760不锈钢台面 ,保证值班人员日常办公。
机房平面布置图
